0
Skip to Content
Zachary Garratt
Work
About
Contact
Open Menu
Close Menu
Zachary Garratt
Work
About
Contact
Open Menu
Close Menu
Work
About
Contact
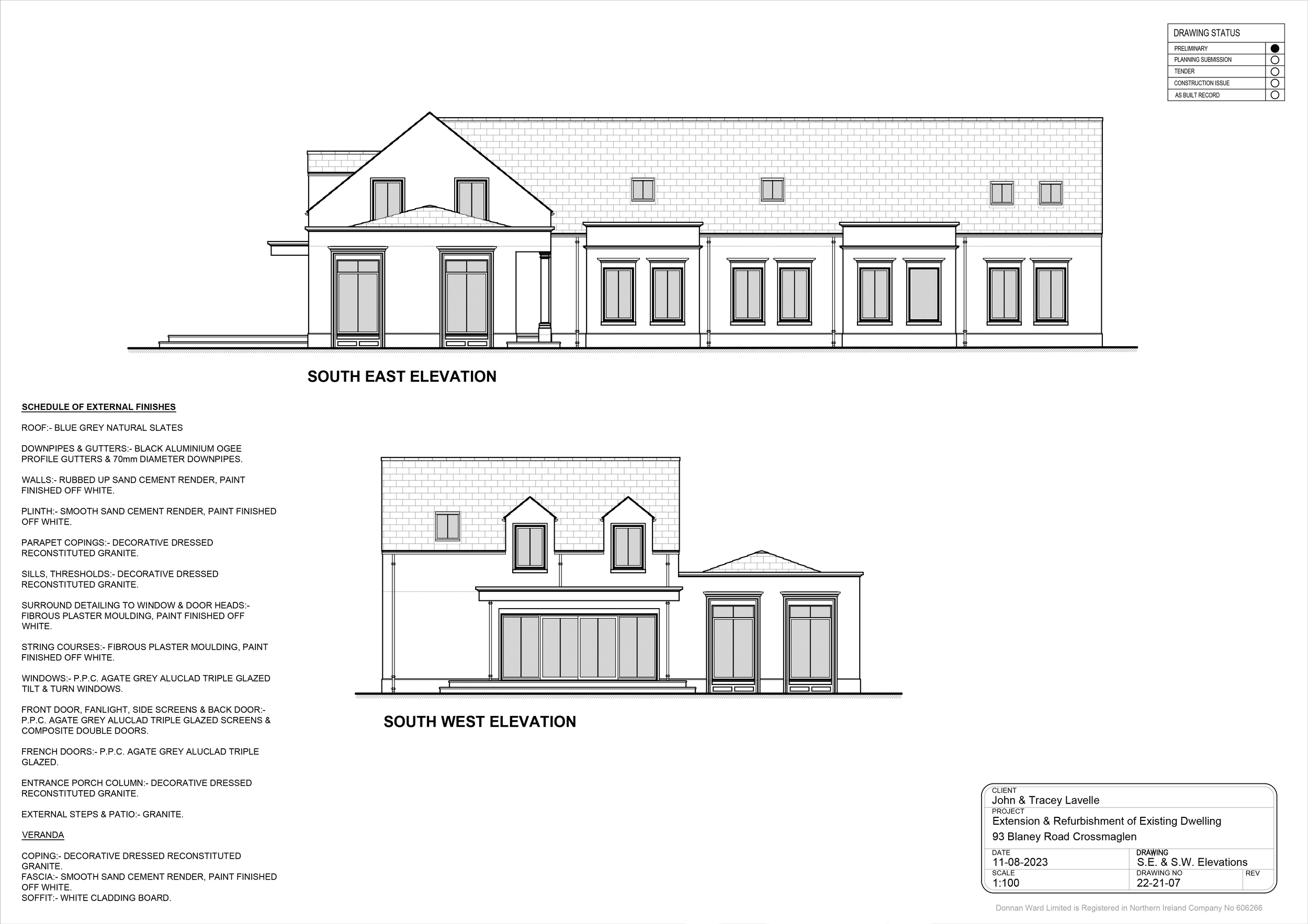
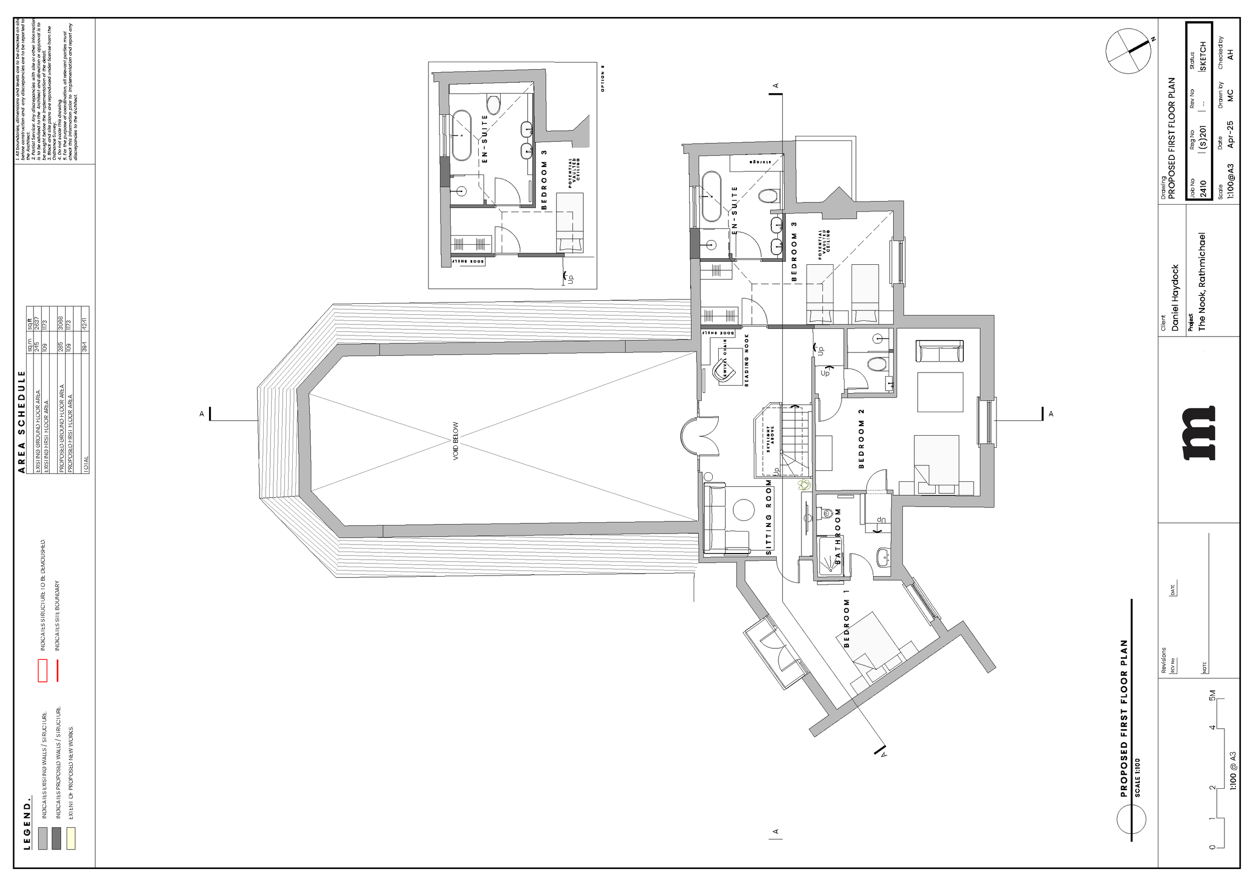
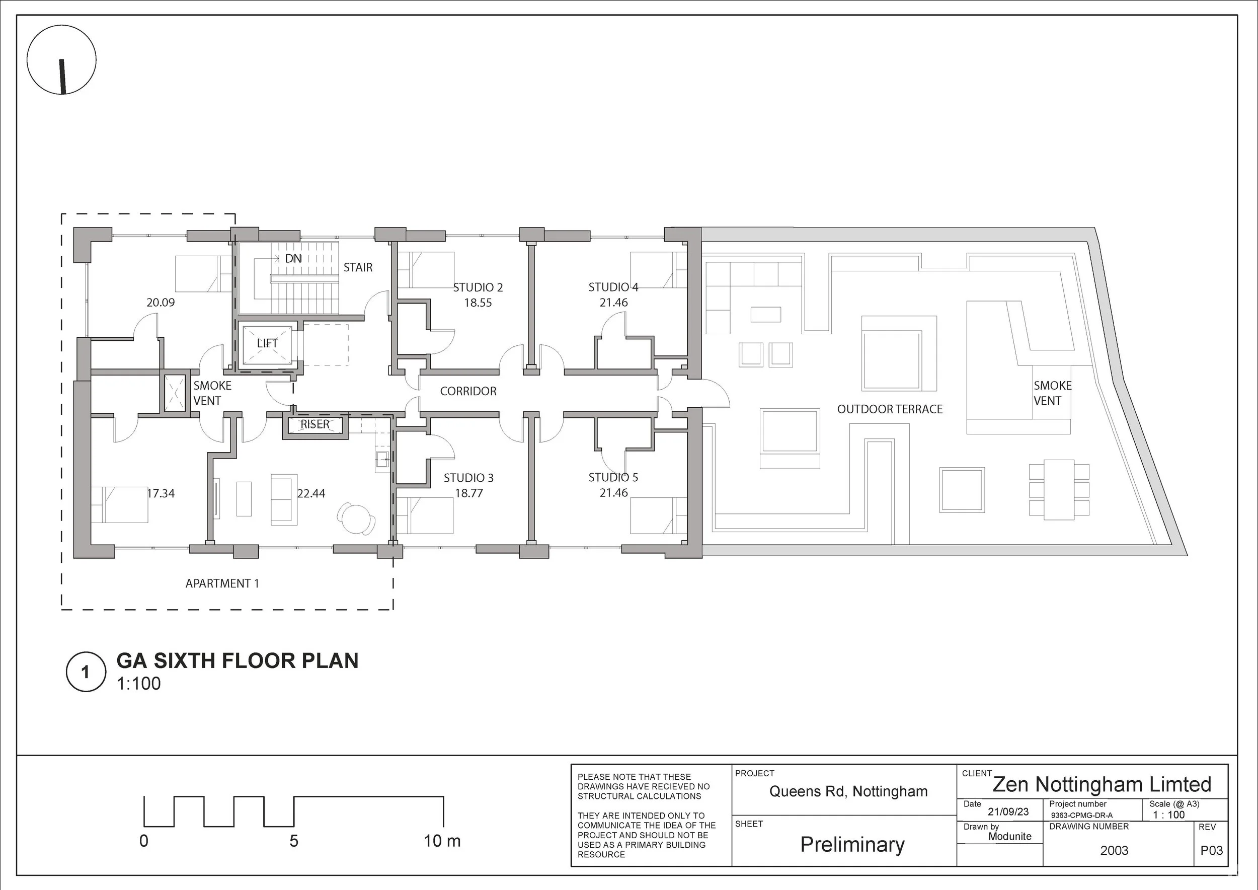
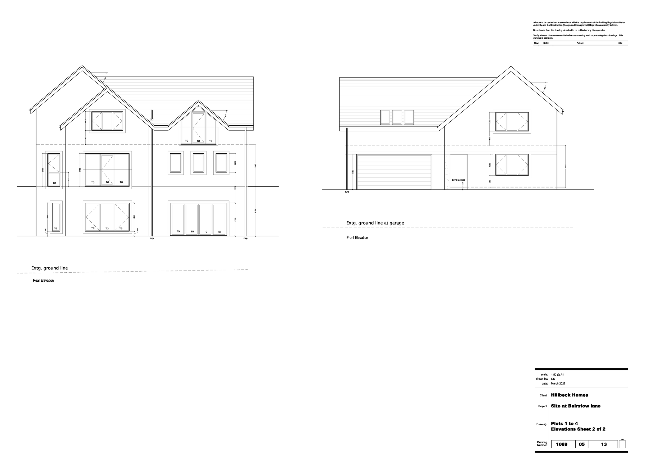
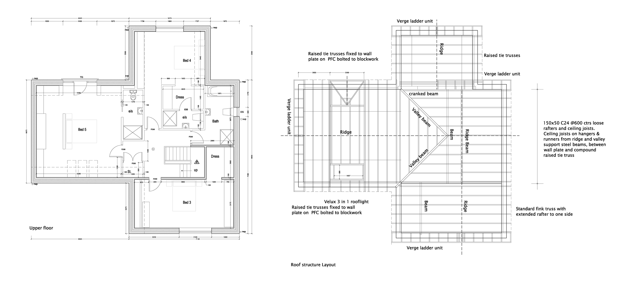
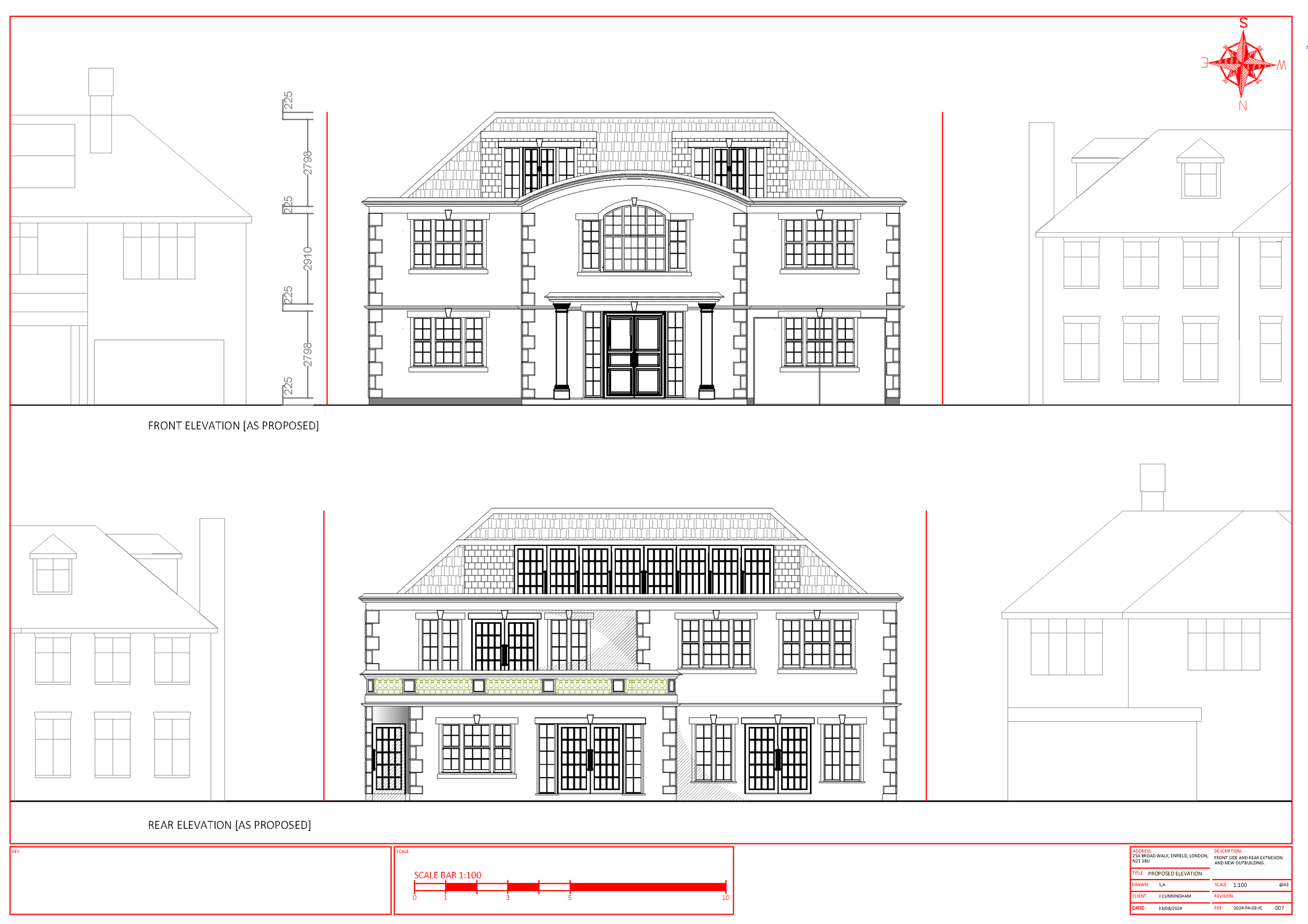
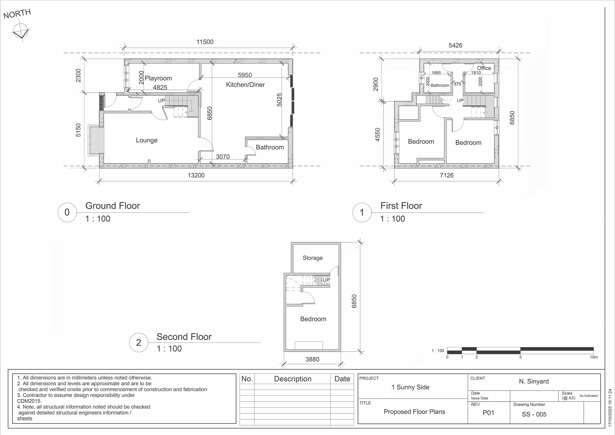
CAD & BIM Models
Previous
Previous
Videos
Next
Next
Garden Rooms